„Er drohte mir, die Freundschaft zu kündigen“
Gilmore Girls gegen das Einsamsein? Der Autor und Journalist Daniel Haas über digitalen Trost – und warum echte Freunde unbequem sein sollten.
Das will jetzt der neu aufgestellte Bebauungplan (B-Plan) 1-91B ändern.
Die Öffentliche Auslegung gemäß § 3 Abs. 2 BauGB zum Entwurf des Bebauungsplans 1-91B "Lehrter Straße" für die Grundstücke Lehrter Straße 6-12, 17-22 sowie die vor den Grundstücken Lehrter Straße 12 und 17 liegenden Flurstücke 7, 256 und 92 im Bezirk Mitte, Ortsteil Moabit hat gestern begonnen. Die Unterlagen liegen aus:
Ort: Bezirksamt Mitte von Berlin, Abteilung Stadtentwicklung, Bauen, Wirtschaft und Ordnung, Fachbereich Stadtplanung, Müllerstraße 146, 13353 Berlin, Zimmer 166, Telefon 9018-45791
Zeit: Vom 14. April bis einschließlich 19. Mai 2014, während der Dienststunden Montag bis Mittwoch von 8.00 Uhr bis 16.00 Uhr, Donnerstag von 9.00 Uhr bis 18.00 Uhr und Freitag von 8.00 Uhr bis 14.00 Uhr sowie nach telefonischer Vereinbarung.

Sie wurden auch digital bereitgestellt:
Presseanzeige
Bebauungsplan 1-91B
Begründung
Sie haben die Möglichkeit, sich an der Planung zu beteiligen. Während der Auslegungsfrist können Stellungnahmen abgegeben werden. Diese sind in die abschließende Abwägung der öffentlichen und privaten Belange gegeneinander und untereinander einzubeziehen.
Sie können Ihre Stellungnahme zu dem Bebauungsplan 1-91B während der oben genannten Auslegungszeit formlos an das Bezirksamt Mitte von Berlin, Fachbereich Stadtplanung, 13341 Berlin, oder über dieses Onlineformular abgeben.
Hier ist der Bericht über das Anhörungsergebnis der frühzeitigen Bürgerbeteilugung (Drs. 1327/IV). Weitere Nachträge siehe ganz unten.
Ursprünglicher Artikel vom 4. November 2013:
Schon seit einer Woche, nämlich vom 28. Oktober bis einschließlich 28. November 2013 liegt der Entwurf des Bebauungsplans 1-91B "Lehrter Straße" für die Grundstücke Lehrter Straße 6-12 und das südlich angrenzende Flurstück 150, Lehrter Straße 17-22 sowie die vor dem Grundstück Lehrter Straße 12 liegenden Flurstücke 256 und 92 und dem vor dem Grundstück Lehrter Straße 17 liegenden Flurstück 7 im Bezirk Mitte, Ortsteil Moabit im Rahmen der frühzeitigen Öffentlichkeitsbeteiligung gemäß § 3 Abs. 1 BauGB aus.
Man hat die Möglichkeit, sich an der Planung zu beteiligen, die Pläne und Entwürfe einzusehen und sich Ziele, Zweck und Auswirkungen der Planung erläutern zu lassen, sowie Stellungnahmen zur Planung abzugeben. Das Anhörungsergebnis wird in die weitere Planung einfließen.

Ort: Bezirksamt Mitte von Berlin, Abteilung Stadtentwicklung, Bauen, Wirtschaft und Ordnung, Fachbereich Stadtplanung, Müllerstraße 146, 13353 Berlin, Zimmer 167, Telefon 9018-45732
Zeit: Vom 28.10.2013 bis einschließlich 28.11.2013, während der Dienststunden Montag bis Mittwoch von 8.00 Uhr bis 16.00 Uhr, Donnerstag von 9.00 Uhr bis 18.00 Uhr und Freitag von 8.00 Uhr bis 14.00 Uhr sowie nach telefonischer Vereinbarung.
Die Unterlagen waren auch digital bereitgestellt:
Presseveröffentlichung
Bebauungsplanentwurf 1-91B
Begründung
Die Stellungnahme zu dem Bebauungsplan 1-91B kann während der oben genannten Auslegungszeit formlos an das Bezirksamt Mitte von Berlin, Fachbereich Stadtplanung, 13341 Berlin, oder über dieses Onlineformular abgeben werden. Hier findet man alle Informationen zur Bauleitplanung im Bezirk Mitte.
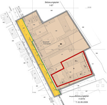
Dieser Teil der Lehrter Straße ist laut Baunutzungsplan von 1960 als beschränktes Arbeitsgebiet festgesetzt. Eines der Planungsziele ist tatsächlich "die im Bestand vorhandene Wohnnutzung erstmals planungsrechtlich zulässig zu machen". In der Lehrter Straße wurden bereits Ende der 1980er Jahren Bebauungspläne aufgestellt worden. Für dieses Gebiet der (qualifizierte) B-Plan II-138 und auch eine frühzeitige Bürgerbeteiligung durchgeführt. Danach passierte allerdings erstmal zehn Jahre nichts. Schließlich wurde 2002 das Verfahren mit erweiterten Grenzen - eine geplante Grünfläche auf ehemaligem Bahngeländer hinter der Lehrter Straße 6 war dazugekommen - weitergeführt allerdings ohne Erfolg u. a. wegen Problemen mit Altlasten. In diesem Sommer wurde die Einstellung dieses Plans beschlossen und die Aufstellung des einfachen B-Plans 1-91B, der jetzt ausliegt.

Schon damals sollte ein Mischgebiet festgesetzt werden, um das Wohnen zu schützen. Warum macht man das denn eigentlich nicht mit einem Wohngebiet (WA)? Aber zwischen den Wohnhäusern liegt ja jetzt das A&O Hostel.
Das Gewerbehaus im hinteren Bereich, das ehemalige Hertie-Lager Lehrter Straße 17 (früher 16-19), wurde Anfang des Jahres verkauft. Die neuen Eigentümer, die Lehrter 17 ImmobilienverwaltungsGmbH, die zur Minerva-Immobilien-Gruppe gehört, wollen in das Fabrikgebäude Lofts zum Wohnen einbauen und ein zweistöckiges Gewerbegebäude aufstocken. Auch das ist ein Grund, weshalb dieser B-Plan jetzt bearbeitet wird. Als Zwischennutzung ist eine Galerie eingezogen. Bisherige Gewerbemieter konnten keine längerfristigen Vertrag mehr abschließen, deshalb wird die Aroma Offensive Ende des Jahres schließen. Ob die Indonesische Botschaft in der Lehrter Straße 16-17 im Gebäudeteil vorne an der Lehrter Straße bleiben wird, ist nicht bekannt.
Bei der Betroffenenratssitzung am Dienstag, den 5. November soll der B-Plan besprochen werden (Protokoll). Es gibt auch noch Festsetzungen für Flurstücke, die Vorgartenflächen sind und die Fläche des Döberitzer Grünzugs. Das muss man sich alles noch einmal genauer ansehen oder erläutern lassen.
Nachtrag:
Die BLN (Berliner Arbeitsgemeinschaft Naturschutz) hat bereits eine Stellungnahme abgegeben (Wortlaut in Kommentar Nr. 3). Die Stellungnahme des Betroffenenrats Lehrter Straße (Wortlaut in Kommentar Nr. 4).
Nachtrag zum Projekt Lehrter Straße 17:
Es gibt bereits eine erste Vision (nicht mehr online), wie es aussehen könnte, auf der Seite der Architekten Baumhauer. Darauf scheint es, als ob die Remisengebäude für neue Townhouses weichen müssen. Das ist aber laut Auskunft des Architekten noch nicht entschieden und hängt von der Statik der bestehenden Gebäude ab.
Nachträge zum B-Plan:
Der Bericht über das Anhörungsergebnis ist in den Unterlagen zur nächsten BVV (Drs. 1327/IV). Man Kennt das ja schon "Wird nicht berücksichtigt", "wird nicht berücksichtigt". Und die Fläche des Döberitzer Grünzugs wird aus dem B-Plan wieder rausgenommen, weil sie ja über das Planfeststellungsänderungsverfahren beim Eisenbahn-Bundesamt läuft!
Die öffentliche Auslegung des B-Plans 1-91B ist heute im Amtsblatt veröffentlicht und mit dieser Pressemitteilung des Bezirksamts Mitte angekündigt: vom 14. April bis 19. Mai 2014.
Anfang Juli 2014: laut Auskunft der Bauaufsicht ist noch kein Bauantrag für die Lehrter Straße 17 gestellt worden. Was den B-Plan 1-91B betrifft, soll er nach der Sommerpause - also zu September - in die BVV kommen, danach folgt 2 Monate Rechtsprüfung durch die Senatsverwaltung. Also die Festsetzung kann noch ein bisschen dauern.
Die Vorlage zum B-Plan ist in den Bezirksamtsbeschlüssen vom 15.7.14 und wird in die September BVV kommen und vermutlich am 5.11. in den Stadtplanungsausschuss.
Der B-Plan-Entwurf 1-91B ist als Vorlage zur Kenntnisnahme in den Unterlagen zur nächsten BVV am 18. September 2014 als Drs. 1563/IV mit allen fünf Anlagen. Im Stadtentwicklungsausschuss am 24.9.14 wurde er nicht behandelt, sondern auf die nächste Sitzung verschoben.
Wie den Kommentaren (ab Nr. 11) zu entnehmen ist, wurde das Projekt im November bei der Betroffenenratssitzung vorgestellt und zweimal im Stadtentwicklungsausschuss beraten, bevor die BVV am 18. Dezember 2014 den Plan als Rechtsverordnung beschlossen hat (Drs. 1563/IV).
Nachträge zum Projekt Lehrter 17:
Artikel im Tagesspiegel über die Lehrter Straße 17, ein wenig zu euphorisch über Zwischennutzung und Kunst in leerstehenden Büros, bis dann endlich zu Wohnungen umgebaut werden darf. Allerdings würden Anwohner oder andere Insider sagen, nicht ganz zutreffend dieser Bericht, denn was ist eigentlich mit den Gewerbetreibenden, die dort raus mussten, wie der Aroma Offensive oder denjenigen, die bleiben möchten, wie die akademie.de?
Die Vermarktung der Loftwohnungen, Town- und Penthouses startet am Samstag, 6. September 2014. Hier die Webseite des Projekts "Loftblick 17". Vermarktet wird das Minerva-Projekt von BBI Immobilien, die am Kurfürstendamm sitzen, aber gerade ein Vermarktungsbüro vor Ort in den ehemaligen Räumen der Aroma Offensive einrichten. Von den 43 Einheiten sind bereits 11 reserviert.

Die Bauarbeiten haben im Frühjahr 2015 begonnen. Das Dachgeschoss aus den 1990er Jahren ist bereits abgebaut. Jetzt wird auch über Immonet vermarktet, z.B. 3-Zi-Penthaus, 151 qm, fast 900.000 Euro oder 5-Zi, 206 qm, fast 1.200.000 Euro . Interessanterweise sind gerade die teuren Wohnungen noch zu haben, 22 Whg. sind schon weg.
Prospekt des gesamten Projektes.
Der Abriss der Remise am nördlichen Grundstücksrand - dort sollen drei Townhäuser gebaut werden - ist Anfang Juli bereits erfolgt.
Nachtrag zum B-Plan:
Wie der Begründung für den angrenzenden B-Plan 1-67VE (Seite 22, 116 - leider nicht mehr im Netz) zu entnehmen ist, wurde der B-Plan 1-91B nicht festgesetzt, da die Rechtsprüfung der Senatsverwaltung für Stadtentwicklung und Umwelt ihn beanstandet hat.
Dazu gibt es jetzt auch zwei Große Anfragen in der September-BVV (Drs. 2254/IV) und etwas knapper Drs. 2245/IV.
Die Antwort zu den beiden Anfragen Drs. 2254/IV und Drs. 2245/IV sind jetzt da: Es heißt, dass es Abwägungungsfehler gab bezüglich der "Aufhebung des Maßes der baulichen Nutzung" und der "Konfliktbewältigung der Lärmschutzproblematik". Die Verfahrensschritte Behördenbeteiligung und Öffentlichkeitsbeteiligung müssen wiederholt werden.
Nachtrag zum Projekt Lehrter Straße 17:
Der Bau ist im Juli 2017 fast fertiggestellt. Neue Bewohner*innen sind bereits seit dem Frühjahr auf die Baustelle gezogen.
Hier ein Architektur-Artikel CUBE 1/17