„Er drohte mir, die Freundschaft zu kündigen“
Gilmore Girls gegen das Einsamsein? Der Autor und Journalist Daniel Haas über digitalen Trost – und warum echte Freunde unbequem sein sollten.
Jetzt muss ganz Moabit aktiv werden! Es kann doch nicht sein, dass die Fördermittel für das Becken zum Draußen Schwimmen zurückgegeben werden! Bei Umfrage mitmachen! Politiker ansprechen! Aktion unterstützen!

Die Schließung des Sommerbad Poststadion war für uns Moabiter und besonders für Familien, Kinder und Jugendliche eine Katastrophe. Zahlreiche Versuche Ersatz zu schaffen scheiterten. Das Grundstück wurde verkauft. Hier entsteht eine Wellnessoase, die sich die meisten wohl kaum oder sehr selten leisten können (zu den Einzelheiten, siehe unten).
Das Bezirksamt Mitte bemüht sich seit Jahren um Lösungen. Um kleine Lösungen. Ein Durchschreitebecken wurde aus bezirklichen Mitteln gebaut, damit der Teil der Liegewiese, die zum Hallenbad gehört, im Sommer genutzt werden kann. Drinnen schwimmen, draußen sonnen! Doch auch Draußen Planschen sollte eigentlich wieder möglich werden!
Im Förderprogramm des Stadtumbau West wurden 1,35 Mio. Euro für ein Außenbecken (25 x 12,2 x 1,35 Meter) plus Kinderplansche und Bodenplatten rundherum reserviert. Das Geld steht zur Verfügung. 2012 könnte gebaut werden. Doch der Aufsichtsrat der Berliner Bäder Betriebe (BBB) will das Geschenk nicht annehmen! Bereits im Juni 2010 hatte MoabitOnline dazu aufgerufen sich an die Mitglieder des Sportausschusses im Berliner Abgeordnetenhaus zu wenden. Bei den Aufsichtsratssitzungen kommt das Thema nicht einmal auf den Tisch, sondern wird schon vorher abgebügelt. Bei der Betroffenenratssitzung in der Lehrter Straße im Februar 2011 wurde berichtet, dass die Gelder aus dem Förderprogramm nicht mehr lange reserviert werden können. Jetzt muss bald eine Entscheidung fallen! Gemeinsam rufen der Quartiersrat Moabit-Ost, der Betroffenenrat Lehrter Straße, BürSte e.V.und auch der Quartiersrat Moabit West zu Aktionen auf.
Lieber Moabiterinnen und Moabiter! Macht mit bei der Online-Umfrage! Schreibt an die Mitglieder des BBB-Aufsichtsrats (s. unten)! Schreibt den Mitgliedern des Sportausschusses des Berliner Abgeornetenhauses (s. unten)! Macht mit bei weiteren Aktionen!
Zum Hintergrund:
2002 wurde zusammen mit 9 Hallenbädern der Berliner Bäder Betriebe (BBB) auch das Sommerbad Poststadion in der Seydlitzstraße geschlossen und Ende desselben Jahres das Grundstück an den Liegenschaftsfonds zum Verkauf übertragen. Ein Protestsommer mit mehreren Demonstrationen zu den umliegenden Bädern folgte. Eine Initiative setzte sich für die Wiedereröffnung des Sommerbads als Naturbad ein. Schließlich scheiterte der Versuch mit einem Bürgerbegehren im Jahre 2006 die Wiedereröffnung zu erzwingen. Alles längst vergangen. Manche zucken die Achseln: Berlin ist eben arm, die Zuschüsse der BBB mussten gekürzt werden. Andere sind immer noch wütend: Bäder sind immer ein Zuschussgeschäft, ohne Subventionierungen geht es nicht. Sie sind wichtig zur Daseinsvorsorge. Schon jetzt gibt es viele Kinder, die es nicht schaffen schwimmen zu lernen. Bei allen Veranstaltungen zur Neugestaltung von Fritz-Schloß-Park und Poststadion, bei Befragungen im Quartiersmanagementgebiet Moabit-Ost, überall dort, wo die Bevölkerung um ihre Meinung gefragt wird, stellt sich heraus, wie schmerzlich das Sommerbad Poststadion vermisst wird. Besonders von Familien, von Kindern und Jugendlichen.
2009 verkaufte der Liegenschaftsfonds das Gelände des Sommerbades mit dem Parkplatz an der Seydlitzstraße an die Brüder Theune, die dort das Wellnessbad Amala Spa errichten wollen. Eintrittpreis laut Presseveröffentlichungen etwa 20 Euro. Bald wird der Bebauungsplan für diese Investition in die zweite Runde der öffentlichen Auslegung gehen.
Seit den ersten Befragungen und Bürgerveranstaltungen zum Einsatz der Fördermittel aus dem Stadtumbau West setzte sich Heinz Tibbe von der gruppe planwerk gemeinsam mit dem Bezirk Mitte engagiert dafür ein, dass die Außenanlagen des Hallenbades mit einem Außenbecken verbessert werden, damit auch für Familien, die sich einen Besuch der Wellnessanlage nicht leisten können, im Sommer Badevergnügen möglich wird. Doch immer wieder gab es neue Probleme. Ein Abgeordnetenhausbeschluss, dass keine neuen Wasserflächen für die BBB hinzu kommen dürfen, besteht seit langem. Zweifel an der Rentabilität sind schwer auszuräumen. Im Mai 2010 hat sich der Betroffenenrat Lehrter Straße zum wiederholten Mal mit dem Außenbecken beschäftigt. Und auch im Mai 2010 besuchte der Sportausschuss des Abgeordnetenhauses im Rahmen seiner Sitzung das Poststadion, dieser Tagesordnungspunkt ist im Wortprotokoll dokumentiert. Es wurde der Versuch gestartet mit Mitteln der Sozialen Stadt die energetischer Sanierung des Hallenbads zu fördern. Doch sind diese Mittel an das bezirkliche Olof-Palme-Kinder- und Jugendzentrum gegangen, das sie natürlich ebenso benötigt. Eine Machbarkeitsstudie dafür wurde vom Stadtumbau West finanziert. Im November 2010 stellte die Antwort auf eine Große Anfrage (DS 1852/III) in der BVV zum Außenbecken klar, dass die BBB das Geschenk nicht annehmen. Wobei das anscheinend am Aufsichtsrat hängt, der überwiegend politisch besetzt ist. Neben den Berliner Bäder Betrieben (Anstalt des öffentlichen Rechts wurde 2006 die BBB Infrastruktur GmbH gegründet, die Liegenschaften verwaltet und das Sanierungsprogramm der Bäder organisiert. Diese steht dem Außenbecken wohl eher positiv gegenüber.
Mitglieder des Aufsichtsrates der BBB sind:
Ehrhart Körting, Senator für Inneres und Sport,
persönliche Referentin: sabine.haefele@seninnsport.berlin.de
Rainer-Maria Fritsch, Staatsekretär für Soziales: poststelle@senias.berlin.de
Klaus Böger, Präsident des Landessportbundes Berlin
Iris Spranger, Staatsekretärin für Finanzen: poststelle@senfin.berlin.de
Wolf-Dieter Wolf, geschäftsführender Gesellschafter der Grundkonzept GmbH: mail@grundkonzept-berlin.de
Doro Zinke, Vorsitzende des DGB Bezirk Berlin-Brandenburg: doro.zinke@dgb.de
Günter Fasel, Personalratsvorsitzender der BBB
Mitglieder des Sportausschusses des Berliner Abgeornetenhauses sind:
Vorsitzende Karin Seidel-Kamutzki (SPD), stellv. Vorsitzende Dr. Gabriele Hiller (Die Linke), Schriftführer Scott Körber (CDU), stellv. Schriftführer Robert Schaddach (SPD), weitere Ausschuss-Mitglieder der SPD: Christian Gaebler, Andreas Kugler, Markus Pauzenberger, der CDU: Andreas Statzkowski, Albert Weingartner, von Bündnis 90/Die Grünen: Anja Kofbinger, Felicitas Kubala, Die Linke: Martina Michels, der FDP: Sebastian Czaja. Sportpolitische Sprecherinnen und Sprecher ihrer jeweiligen Fraktion sind: Markus Pauzenberger (SPD), Andreas Statzkowski (CDU), Felicitas Kubala (Bü90/Grüne), Dr. Gabriele Hiller (Die Linke), Sebastian Czaja (FDP). Beratendes Mitglied im Sportausschuss ist: Benedict Lux (Bü90/Grüne).
oder auch an den Staatssekretär Thomas Härtel,
persönlicher Referent: daniel.behrendt@seninnsport.berlin.de
:
Mittlerweile gibt es auch eine Unterschriftenliste, die hier heruntergeladen werden kann.

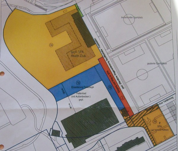
Hier kann man erkennen, welche Grundstücksfläche (aif dem Plan blau) zur Liegewiese des Hallenbades dazu kommt. Gelb und orange sind die Flächen, die für das Wellnessbad Amala Spa verkauft wurden. Bezirksstadträtin Schrader soll im Sportausschuss schon ihrer Verzweiflung Ausdruck verliehen haben, indem sie fragte: "Wie werden wir die Fläche jetzt wieder los?". Das kann doch nicht das Ergebnis der Bemühungen sein.
Auszug aus dem Protokoll der Sportausschusssitzung der BVV Mitte vom 25.1.11, Teil, der sich mit den Planungen und Ablehnungen für das Ausßenbecken bzw. Plansche für das Seydlitzbad beschäftigt.
Zur Info hier die Mitteilung zu Kenntnisnahme im Abgeordnetenhaus über das Bäderkonzept und die Antwort vom 3.3.11 auf eine Anfrage der Grünen-Abgeordneten Felicitas Kubala.
Die Berliner Woche berichtete am 2.3. unter dem Titel "Schwimmer müssen drinnen bleiben" und am 9.3.11 "Gewinn für beide Seiten" darüber, dass die Stadträte in Mitte sich für das Außenbecken stark machen wollen.
Die Berliner Woche berichtet am 8.6. unter dem Titel "Neues Angebot" über die Entscheidung im Hauptausschuss der BVV sozusagen ein Bürgschaft für das Außenbecken zu übernehmen. Es wird wohl aber auch nötig sein, dass die Anlage des Außenbeckens ins Fachvermögen des Bezirksamts übernommen wird.
Weitere Nachträge unter dem Flugblatt-Artikel "FREIBAD-ALARM !!!"