Mit dem Chef im Bett – Was kann das neue MoaHotel?
Moabit hat ein neues, altes Hotel. Das MoaHotel hat sich von den Ketten des Franchise gelöst und will zu einem Anker des Kiezes werden. Aber ist das mehr als ein Marketing-Versprechen?
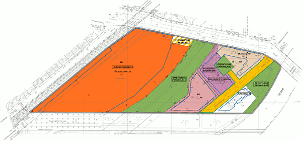
Vom 26. April bis einschließlich 26. Mai 2010 findet durch die Senatsverwaltung für Stadtentwicklung die öffentliche Auslegung des Bebauungsplans für den "Moabiter Werder Nord" statt. Dabei handelt es sich um den Bereich zwischen Stadtbahnviadukt, Alt-Moabit, der Spree und der Ingeborg-Drewitz-Allee und Weg in deren Verlängerung nördlich des Kanzlergartens.

Neben einem "Sondergebiet Bundesregierung" – hier soll das Bundesinnenministerium seinen neuen Standort bekommen – sollen ein Wohn-, ein Kerngebiet und ein Gemeinbedarfsstandort (vorhandene Feuerwache) sowie Grünflächen und die Elisabeth-Abegg-Straße festgesetzt werden. Ebenfalls geregelt wird der Erhalt des denkmalgeschützten Gebäudes des Restaurants "Paris-Moskau" und dessen gastronomische Nutzung ebenso wie die gastronomische Nutzung des Zollpackhofs — der Name erinnert an die historische Nutzung des Gebäudes.

Hier stehen die Planzeichnung (pdf; 674 KB) des Bebauungsplans II-200g und dessen Begründung (112 Seiten, pdf, 1,5MB) bereit. Sie haben die Möglichkeit, sich an der Planung zu beteiligen. Während der Auslegungsfrist, also bis spätestens 26. Mai 2010, können Stellungnahmen abgegeben werden. Diese sind in die anschließende Abwägung der öffentlichen und privaten Belange gegeneinander und untereinander einzubeziehen.
Entwicklung des B-Plans

Gemäß Baunutzungsplan vom Dezember 1960 war das Gebiet als "Nichtbaugebiet" ausgewiesen. Erste Konzeptionen des Ursprungsbebauungsplans sahen für den Geltungsbereich des Bebauungsplans II–200g die Sicherung von Sonderbauflächen für Hauptstadtfunktionen vor. Nach der ersten Beteiligung der Träger öffentlicher Belange in den Jahren 1994/1995 wurde jedoch kein Flächenbedarf mehr für Hauptstadtfunktionen im geteilten Bebauungsplan II–200g gesehen. Anfang 2005 wurden Überlegungen des Bundesinnenministeriums öffentlich, auf dem Moabiter Werder einen Neubau für das Bundesinnenministerium zu errichten, in dem alle MitarbeiterInnen der derzeitigen drei Berliner Standorte des Ministeriums untergebracht werden sollen. Für den Neubau des Innenministeriums wurde ein Wettbewerb durchgeführt, im Oktober 2007 entschied sich ein Preisgericht für den aus drei "Z" (Bild oben) zusammengesetzten unterschiedlich hohen Baukörper des Büros Müller-Reimann (Berlin) als ersten Preisträger. Unterlagen hierzu wie die nachstehend abgebildete Fassade finden Sie auf der oben verlinkten Seite zum Wettbewerb.

Die frühere Planung sah vor, westlich der "Kastanienrampe" die nördlich Alt-Moabit angelegte "ULAP"-Parkanlage fortzusetzen, die östliche Sondergebietsgrenze verlief unmittelbar an der östlichen Gebäudekante des geplanten Neubaus und schloss direkt an die geplante öffentliche Parkanlage an.

Ursache der Vergrößerung des Sondergebiets sind Forderungen des Bundesinnenministeriums wegen Sicherheitserfordernissen: »Aufgrund von Sicherheitserfordernissen ist im Verlauf des Verfahrens die nordwestliche Grenze der Parkanlage zugunsten des Sondergebietes zurückgewichen.« (Begründung B-Plan, S.101). Das Bundesinnenministerium bat dann auch darum, die Hinweise auf die Sicherheitserfordernisse nicht aufzuführen: »Das BMI bittet Hinweise auf Sicherheitserfordernisse im Text nicht aufzuführen. Aus Sicht des Bundes reicht als Begründung aus, dass im Rahmen der Konkretisierung der Planung ein Flächenaustausch auf der östlichen Seite der Kastanienrampe zwischen dem Bund und dem Land Berlin stattfand und somit eine Durchwegung vom ULAP-Park bis zur Uferpromenade an der Spree längs der Kastanienrampe sichergestellt wurde.« (ebenda)
Im südöstlichen Teil des Geltungsbereichs (zwischen Feuerwache und Kanzlergarten) soll ein allgemeines Wohngebiet als "hochwertiger Wohngebietsstandort" entwickelt werden. Im nordöstlichen Teil des Geltungsbereichs soll ein Kerngebiet festgesetzt werden, in dem aber auch Wohnen bis zu einem Anteil von 20% der zulässigen Geschossfläche allgemein zulässig sein soll, und das die für ein Bahnhofsumfeld typischerweise vorhandenen zentralen Nutzungen ermöglicht, allerdings nicht alle: Spielhallen sowie "Einrichtungen zur Schaustellung von Personen" (z.B. Peep-, Sex- und Liveshows), Video- oder ähnliche Vorführungen sowie Bordellbetriebe und bordellartige Betriebe sollen nicht zulässig sein. Im Kerngebiet allgemein zulässige Vergnügungsstätten können laut vorgesehener Festsetzung nur ausnahmsweise zugelassen werden. Im Wohngebiet werden als Nutzungen Gartenbaubetriebe und Tankstellen explizit ausgeschlossen. Als öffentliche Grünflächen sind im ausliegenden Bebauungsplanentwurf die Kastanienrampe, Spreeuferweg und die Grünanlage zwischen "Zollpackhof" und Alt-Moabit sowie eine quadratische Fläche zwischen der Feuerwache und dem Kerngebiet dargestellt.
In der Begründung des B-Plans sind noch viele interessante Sachen auch aus der Beteiligung der Träger öffentlicher Belange zu finden, auch wenn die Redaktion in der Kürze der Zeit die Unterlagen noch nicht durcharbeiten, sondern nur überfliegen konnte. Aber insbesondere sollten ja unsere an Stadtentwicklung interessierten MoabitOnline LeserInnen sich selber ein Bild machen. Auslegungsort der Unterlagen ist die Senatsverwaltung für Stadtentwicklung - Hauptstadtreferat – Jannowitz-Center, Brückenstraße 6, 10179 Berlin, IV Stock, vor dem Raum 4014 sowie nach telefonischer Vereinbarung im Zimmer 4.017. Die Öffnungszeiten: Montag bis Mittwoch 9-17 Uhr, Donnerstag 9-18 Uhr, Freitag9.00 – 15.00 Uhr sowie nach telefonischer Vereinbarung auch außerhalb dieser Zeiten.
Fragen an die Senatsverwaltung zum B-Plan sind zur richten an Ludger Kämereit unter Tel.: (030) 9025 2122, Fax: (030) 9025 2515 oder E-Mail: ludger.kaemereit@senstadt.berlin.de
Ihre Einwendung schicken Sie bis zum 26. Mai 2010 per Brief formlos und schriftlich an:
Senatsverwaltung für Stadtentwicklung
Abteilung II - Städtebau und Projekte, Referat II B
Brückenstraße 6, 10179 Berlin
:
Vorlage zur Beschlussfassung über den B-Plan II-200g im Abgeordnetenhaus vom 14.9.2010
und die Verordnung über die Festsetzung dieses B-Plans vom 5.9.2011
Artikel "Platz für 1400 Mitarbeiter", Berliner Woche
Innenministerium lässt Gläser wackeln, Berliner Zeitung
Geheimsache Regierungsviertel, TAZ und Kommentar von Uwe Rada
Zum Baustopp, Tagesspiegel
Zur baldigen Gerichtsentscheidung, BZ und Probleme des Restaurants Paris-Moakau: "Zoff hinterm Bauzaun des Innenministeriums"
Im 1. Quartal 2015 soll das Gebäude bezugsfertig sein und das Architekturforum diskutiert eifrig die Fassade u.a.
Mängel bei Brandschutz und Barrierefreiheit in der Welt.
Als Umzugsdatum wird April 2015 angegeben (Seite des Bundesinnenministeriums zum Neubau) und jetzt auch ein Morgenpost-Artikel: 208 Millionen Euro, Erdwärmeheizung, Bauzeit 3 Jahre, alles im Plan, Schüsselübergabe am 15. April 2015.
Interview mit Ernst Freiberger zum Spreebogen-Areal ohne Innenministerium (Tagesspiegel).
Beim BND Wasserhähne entwendet und Flutung des Gebäudes, beim Bundesinnenministerium beschränkten sich die Diebe auf den Diebstahl von Toiletteneinrichtung (Berliner Zeitung).
Das Restaurant Paris-Moskau in der Berliner Morgenpost und bei moabit.net.
Nun macht man sich endlich mal Gedanken, was mit dem leeren Gebäude im Spreebogen passieren soll und vor allem wie der Mietvertrag mit dieser horrenden Miete, die jetzt auch noch für das leere Gebäude gezahlt wird, entstanden ist (Tagesspiegel). Der Millionen-Mietstreit vor dem Landgericht (Tagesspiegel).
Am Spreebogen soll in die früheren Räume des Bundesinnenministeriums nun die Postbank mit 500 Mitarbeiter*innen einziehen (Tagesspiegel).
Urteil in erster Instanz: Bundesinnenministerium muss noch ca. 18 Mio. Euro Miete zahlen (Tagesspiegel).